stadt der zukunft – innovativ, grün, sozial
tradition trifft moderne
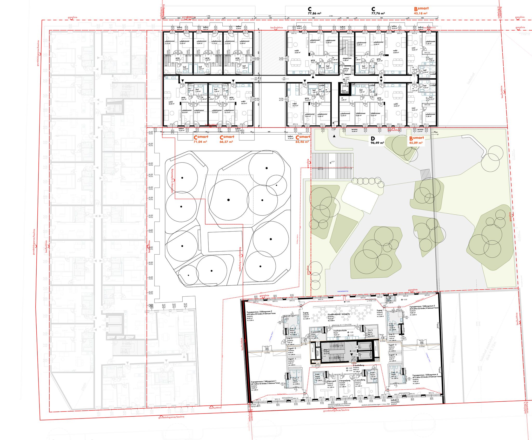
die traditionelle blockbebauung erfährt eine zeitgemäße umgestaltung durch unterschiedliche hochpunkte und begrünung der fassaden- und dachflächen. das entstehende dynamische stadtbild verbessert die durchlüftung und das mikroklima. situiert zwischen dem augarten und dem nordwestbahnhof-entwicklungsgebiet liegt das projekt in einer attraktiven innerstädtischen wohnlage. der wiener block 2.0 prägt ein modernes, soziales und nachhaltiges wohnkonzept.
semi-öffentliche plätze, grüne fassaden – kühlende umgebung
das zurückrücken der warmen hülle ermöglicht einen breiteren gehsteig und bietet gemeinsam mit den grünen arkaden einen mehrwert für die fußgänger*innen in der öffentlichen erdgeschoßzone.
die begrünten dachterrassen und halböffentlichen plätze im innenhof schaffen nicht nur wertvollen raum für die bewohner*innen und nutzer*innen, sondern tragen auch aktiv zur abkühlung der umgebung bei. kletterpflanzen ranken entlang der fassade und leisten einen weiteren wesentlichen beitrag im umgang mit temperaturschwankungen und urbaner schallabsorption bei. die förderung von biodiversität erlaubt einen naturnahen ort und verbessert spürbar das mikroklima - eine "waldoase" inmitten der stadt.
die bauplatzübergreifende energieversorgung durch tiefensonden und bauteilaktivierung gewährleistet eine nachhaltige und energieeffiziente infrastruktur.
nutzungsmix durch flexible struktur
das projekt verfolgt die vision einer produktiven stadt, die einen vielseitigen nutzungsmix aus wohnen, gewerbe und infrastruktur bietet. von einzelhandel und gastronomie über arbeit bis hin zu bildung und freizeit deckt das konzept eine breite palette ab.
die flexible baustruktur der gewerblichen flächen ermöglicht aneignung und spielräume für verschiedene branchen und ist darauf ausgerichtet, eine lebendige und inklusive städtische umgebung zu schaffen.
| fertig | 2028 |
| fertig (wettbewerb) | 2020 (1. platz) |
| land | AUT |
| ort | wien |
| grösse | 33.200 m2 |
| auftraggeber | süba |
| projektleitung | ursula konzett zsuzsanna takacsy |
| team | irene carles vadim ghiorghiu marlene melkus diana perge johanna sieberer johannes zotter |
| projektleitung (wettbewerb) | gil cloos |
| team (wettbewerb) | simon beirle franziska däuble vadim ghiorghiu stefanie meyer |
| landschaftsplanung | green4cities |
| statik | DSP |
| bauphysik | hacon |
| haustechnik | lechner & partner |
| brandschutz | brandschütz |
| visualisierung | VDX |


















